Strandhøjen, Nyborg

Strandhøjen, Nyborg

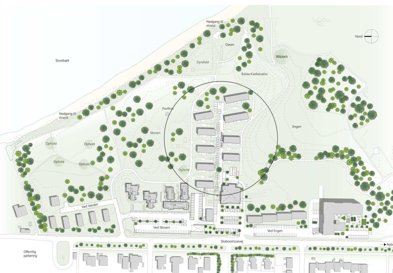
Nord for Nyborg bycentrum lå den tidligere institution Strandvænget, bygget i rustik beton. Boformer og behandlingsmetoder har udviklet sig, og komplekset er derfor fraflyttet. Det nuværende fælleshus bevares og renoveres.

Den tidligere institution er nu omdannet til den moderne ”Strandhøjen” og har en enestående beliggenhed i udkanten af Nyborg, kun 5 minutters kørsel fra byens centrum. Området har et direkte kig ud mod Storebælt. Den 180 år gamle Teglværksskov, med sin bløde overgang fra den grønne skov til det store åbne engområde, danner naturskønne rammer for Beboerne.

De nye boliger er bygget i forskellige størrelser og faconer, der tilpasser sig grundens unikke udformning og visionen om, at der skal bygges boliger, som henvender sig til alle generationer.

Skal vi hjælpe jer?

Kontakt HARREBEK ARKITEKTER A/S

Du er altid velkommen til at tage kontakt til Harrebek Arkitekter A/S, hvis du har spørgsmål eller ønsker dialog om et muligt samarbejde.

Ring til os på telefon +45 65 31 16 18 eller send en mail til info@harrebek.dk. Vi besvarer din henvendelse hurtigst muligt.

+45 65 31 16 18
info@harrebek.dk